Overview
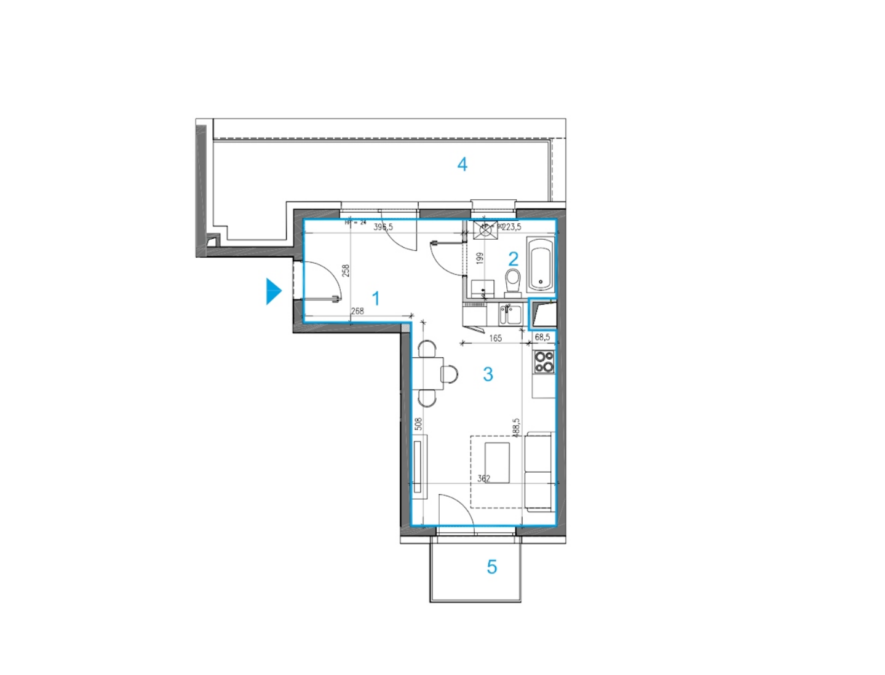
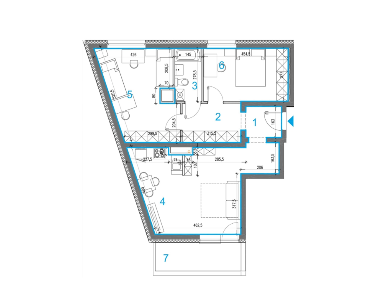
Incepti GAJ is a modern, seven-story multi-family building with commercial units and a two-level underground parking lot. The project is being built on Żegiestowska Street in the northwestern part of the Gaj estate. Gaj is an estate in the popular and vibrant southern part of Wroclaw. The plot on which the investment will be built is located in the second line of development in relation to the main artery of Armii Krajowej and Borowska Street, which at the same time makes the location distant from the hustle and bustle of the city. The building has a two-story underground parking lot and off-road parking with an exit from the public road of Żegiestowska Street. For lovers of two wheels, bicycle rooms and external bicycle racks have been prepared, and storage rooms have also been designed, both in the underground garage and at the level of the residential floors. The form of the building is formed by two rectangular, seven-story wings, arranged perpendicularly to each other, divided into three zones A, B and C, each with a separate staircase and elevator. The range of all three elevators will cover the lower level of the parking lot, up to the 6th floor. The building is designed with corridor-style apartments. Almost all of the apartments have balconies, varying in finishing materials through openwork steel balustrades or glass balustrades. The building's harmonious, repetitive arrangement of windows has been varied, so to speak, by their irregular placement. The divisions of the facade, the rhythm of the windows, together with the composition of the balconies, make the building coherent and relate in form to the neighboring residential buildings. This is intended to create a compact and comprehensive estate with a common, distinctive character. The Incepti GAJ development is dominated by an offer aimed at customers looking for their own place to start, i.e. one-room apartments and two-room apartments. Among these two types of apartments there will be a one-room apartment of 27 sqm, as well as larger studios up to almost 38 sqm.
- Status Completed
- Location Wroclaw, Krzyki
- Type Residential complex
- Apartments285
- Number of buildings1
- Areas of apartments27 m² - 67 m²
- DeveloperIncepti Gaj
- Downpayment100%
- Number of stores6
- Apartment finishingTurnkey finishing
- Construction completion date2023
- Price Range $4000 - $4500







