Przegląd
333 apartamenty zlokalizowane będą jedynie 10 minut od dworca Warszawa Centralna. Po drugiej stronie ulicy znajduje się centrum wystawiennicze EXPO XXI.
Budynek będzie posiadał wszystkie najważniejsze udogodnienia, tak istotne dla osób przebywający na krótko-, jak i długoterminowo. Oprócz dużej strefy coworkingowej, powstanie także sala kinowa, strefa fitness i wypoczynku.
Budynek posiadać będzie zielone dachy, panele fotowoltaiczne oraz ogrody deszczowe. W częściach wspólnych zaprojektowano oświetlenie LED, a na zewnątrz budynku, monitoring.
Stylowe lobby. Wysokiej klasy restauracja. Do tego ponad 200-metrowa strefa coworkingu.
W dziesięć minut dojedziemy tutaj z Dworca Centralnego, a w pięć z Warszawa Zachodnia. Miejsce jest doskonale skomunikowane z centrum miasta. Nie będzie również problemu z pozostawieniem samochodu, ponieważ zaprojektowano parking podziemny.
- StatusW trakcie budowy
- LokalizacjaWarszawa, Wola
- TypKompleks mieszkalny
- Mieszkania333
- Liczba budynków1
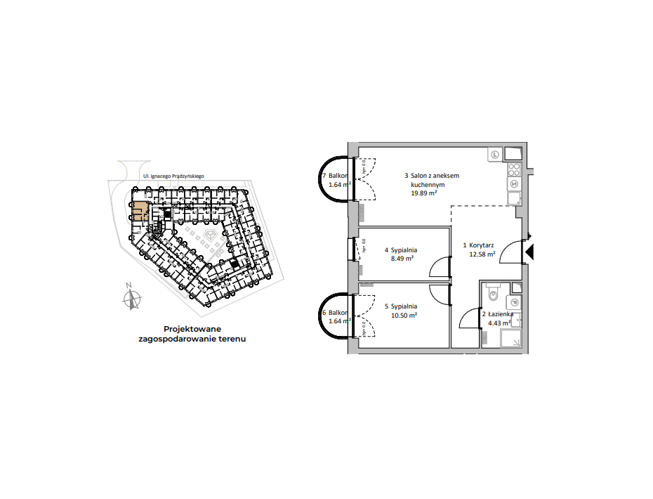
- Powierzchnia mieszkań26 m² - 57 m²
- Liczba pięter9
- DeweloperDekpol
- Zaliczka35%
- Ratydo 16 miesięcy
- Wykończenie mieszkańStandart deweloperski
- Data zakończenia budowy4 q 2025
- Price Range $5450 - $7325




